ÚJ

AREZZO design CLEAR walk-in zuhanyfal, bordázott 900x2000

Cikkszám: 
AR-AS290200
AZ ÁR NEM TARTALMAZZA A RÖGZÍTŐ PROFILT!
Válaszd ki a fürdőszobádhoz leginkább színben illő profilt az alábbi csomagok közül.
Várható beérkezés:
2026.04.16
Rendelhető
79 920 Ft
Emeld fürdőszobád eleganciáját prémium minőségű zuhanyfalunkkal!

Magas minőségű, edzett üvegfelületének köszönhetően maximális biztonságot és tartósságot nyújt.
A külön vásárolható rozsdamentes acél fali profil modern megjelenést és hosszú élettartamot biztosít még nedves, párás környezetben is.

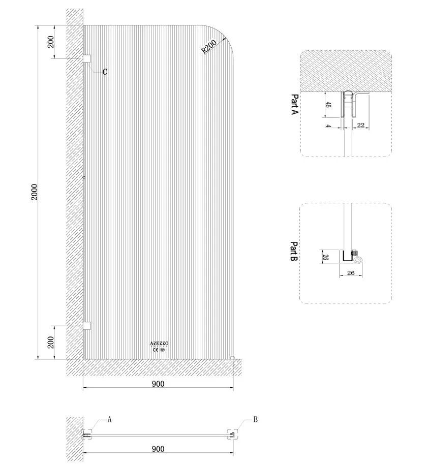
Fontos szerelési információ

A termék csak a műszaki rajzon jelzett módon, bal oldali rögzítéssel szerelhető fel.
A zuhanyfal nem megfordítható, ezért a beépítés előtt különösen fontos ellenőrizni a beépítési irányt és a rendelkezésre álló helyet.
Szélesség (mm): 900 Szélesség (mm):
900
Magasság (mm): 2 000 Magasság (mm):
2 000
Mélység (mm): 8 Mélység (mm):
8
Szín:
Áttetsző
Szín:
Áttetsző
Csomagajánlatok
Kiegészítő termékek
AREZZO design CLEAR walk-in zuhanyfal, bordázott 900x2000
AREZZO design CLEAR walk-in zuhanyfal, bordázott 900x2000
79 920 Ft